Archisketch
•
관련된 사람

Archisketch(아키): 어떤 취지로 시작된 프로젝트였는지 소개해 주세요!
Elodie 디자이너(혜빈): 그동안은 주로 온라인 공간 디자인에 집중해왔다면, 이번 프로젝트로 디지털 공간을 현실 공간까지 연결해보는 시도를 했어요. 클라이언트의 니즈에 맞춰 레이아웃을 설계하고, 실제 가구 리스트까지 정리해 디렉팅한 프로젝트였기에 저에게도 매우 의미 있었고요. 특히 평소 카페 공간에 깊은 관심이 있어 다양한 카페를 경험하고 관찰해왔기 때문에, 이번 작업에 특히 더 몰입할 수 있었어요.
이 프로젝트에서 소개할 디자인 프로세스는 어디까지나 저만의 방식이에요. 꼭 따라야 하는 ‘정답’은 아니지만, 공간 디자인을 고민 중인 분들께 하나의 사례로 도움이 되길 바라며 저만의 방식을 공유드리고자 해요.

아키: 처음 의뢰가 들어왔을 때, 어떤 공간을 어떤 분위기로 바꾸고 싶다고 하셨나요?
혜빈: 이번 프로젝트의 주인공인 'KYVE'는 강남구 신사동에 위치한 카페예요. 감각적인 사장님이 직접 운영하는 이 공간은, 가을 시즌을 맞아 새로운 분위기로 리뉴얼하고 싶다며 아키스케치 채널톡을 통해 디자인 의뢰를 주셨어요.


혜빈: 기존 KYVE는 실버를 메인 컬러로 한, 미니멀하고 슬릭한 무드의 공간이었어요. 여름과는 잘 어울렸지만, 가을과 겨울에는 다소 차가운 느낌이 들 수 있어, '뉴욕 아파트먼트' 스타일의 감각적이고 아늑한 분위기로의 전환을 원하셨어요.
🗓️ 작업 기간: 2025년 8월 28일 – 8월 29일 (2일)
아키: 디자인을 시작하기 전에 전체 프로세스를 먼저 세운다고 들었어요. 가장 첫 단계는 어떻게 시작하시나요?

혜빈: 프로젝트를 본격적으로 시작하기에 앞서, 전체 작업 프로세스를 먼저 구조화해두었어요. 단계를 명확히 정리하면 디자인 과정이 훨씬 수월하게 진행되기 때문이에요. 이번 Part 1에서는 Step 1(자료 수집)부터 Step 9(최종 디자인 확정)까지의 과정을 공유드리려 해요.
🗓 작업 기간: 2025년 9월 1일 – 9월 2일 (2일)

아키: 본격적으로 디자인을 시작하기 전, 클라이언트의 니즈를 어떻게 파악하셨나요?
혜빈: 공간 스타일링의 시작은 ‘정보 수집’이에요. 디자인 방향을 잡기 위해서는 클라이언트가 어떤 공간을 꿈꾸고 있는지, 어떤 제약 조건이 있는지부터 꼼꼼히 파악해야해요. 이번 프로젝트에서는 아래와 같은 항목들을 사전에 요청드렸고, 대부분 정확히 전달받아 비교적 수월하게 작업을 시작할 수 있었어요.
클라이언트 기본 정보 (성함, 연락처, 이메일)
치수가 포함된 도면
실제 공간 사진
선호하는 공간 레퍼런스 이미지
예산 (대형 가구 기준 / 소품 포함 여부)
마감 기한 (조정 가능성 여부 포함)
기존 보유 가구 및 인테리어 범위
희망 결과물 형태 (이미지, 가구 리스트 등)

혜빈: 치수가 기재된 평면도를 제공받아, 3D 도면을 제작하는 데 큰 어려움은 없었어요. 기본 골조는 수월하게 만들 수 있었고, 계산대 카운터나 천장 구조물 등 디테일한 요소 설계에만 약간의 시간이 더 들었습니다.

혜빈: 클라이언트께서 제공해주신 평면도를 바탕으로 실제 치수에 맞는 3D 도면을 제작했어요. 빌트인 카운터와 마감재 역시 실공간과 최대한 유사하게 반영했고요. 이 과정은 이후 스타일링 작업과 바로 연결되기 때문에 오차 없이 정확하게 모델링하는 것이 핵심 포인트예요. 저는 층별로 약 1시간 30분에서 2시간 정도가 소요됐어요. 익숙하신 분들이라면 저보다 훨씬 더 빠르게 작업하실 수 있을 거예요!
🗓️ 작업 기간: 2025년 9월 4일 – 9월 11일 (8일)
아키: 보통은 현장을 다녀온 뒤에 디자인을 구상하는데, 미리 가디자인을 만들어 가신 이유가 있었을까요?
혜빈: 현장 미팅에 앞서, 클라이언트의 니즈를 좀 더 구체적으로 파악하기 위해 간단한 가디자인 시안을 사전에 구성했어요. 사전 통화에서 전달받은 내용을 바탕으로 '차가운 느낌이 덜한 뉴욕 아파트먼트 무드'를 중심에 두고 기초 공간을 설계했어요.

혜빈: 이 방식의 장점은 디자인의 방향성을 초기에 일관되게 잡는 데 도움이 된다는 거예요. 비슷한 상황이라면 간단한 시안 또는 참고 이미지를 미리 제시해 보는 것을 추천드려요. 이 시안을 기반으로 미팅을 진행했더니, 클라이언트의 반응을 바로 확인할 수 있었고 그 덕분에 이후 프로젝트를 훨씬 더 수월하게 진행할 수 있었어요. 공간에 대한 클라이언트의 취향과 기대를 명확히 이해할 수 있었고, 어떤 요소를 추가하거나 제외할지 빠르게 조율하는 데도 효과적이었죠.
혜빈: 실제 미팅 전에 준비한 주요 질문들이 있어요. 클라이언트가 공간에 바라는 기대치를 구체화하는 데 도움이 된 질문들이니 참고해보세요.
1. 공간의 주요 이용자는 누구인가요?
2. 원하는 스타일이나 분위기가 있을까요?
3. 공간은 어떤 방식으로 활용되길 원하시나요?
4. 정해진 수용 인원 기준이 있나요?
5. 세 공간이 서로 다른 성격을 가지길 원하시나요?
6. 예산은 어느 범위로 고려하고 계신가요? (가구만인지, 소품 포함인지 등)
🗓️ 작업 기간: 2025년 9월 16일 (1일)

아키: 처음 마주한 공간의 인상은 어땠나요? 그리고 현장에서 새롭게 발견된 부분이 있었다면 함께 들려주세요.
혜빈: 현장 분위기는 예상과는 조금 달랐는데요. 사진이나 도면만으로는 파악하지 못했던 디테일들이 눈에 들어왔어요. 우선, 콘크리트 마감이 강하게 드러나면서 공간 전체가 차갑고 인더스트리얼한 무드를 띄고 있었어요. 클라이언트가 원했던 '아늑한 뉴욕 아파트먼트 무드'로의 전환을 위해 이 물성을 어떻게 중화할지가 중요한 과제가 되었죠.
가구를 두려던 영역에 위치한 노출 파이프도 예상치 못한 변수였고, 조명 위치도 예상과 달랐어요. 이런 변수들을 고려했을 때, 현장 사진을 충분히 촬영해두는 것이 매우 중요하다고 느꼈어요. 눈으로 본 느낌만 기억하거나 메모만 남기면, 공간 디테일을 놓치기 쉽기 때문이에요.
콘센트 위치
빌트인 가구 위치
문이 어느 방향으로 열리는지
파이프나 전선 같은 방해되는 구조물
어떤 물건이나 구조물을 철거하실 예정인지
클라이언트가 유지하기 바라는 구조나 가구
아키: 현장 미팅에서는 어떤 대화들을 나누었나요?
혜빈: 공간 디자인은 스타일뿐만 아니라 그 공간이 어떤 '경험'을 제공하길 원하는지까지 이해해야 본격적인 디자인을 시작할 수 있어요. 이번 프로젝트에서 클라이언트께서 강조하신 키워드는 '커뮤니티' 였어요.
KYVE가 바라는 공간은 러닝을 마친 사람들이 모이는 아침 공간이자, 다양한 사람들이 소통하는 커뮤니티 공간이었어요. 클라이언트와의 대화를 통해 포토존에는 감성적인 월아트 디자인으로 포인트를 주고, 소통 공간에는 소파를 중심으로 편안한 라운지 무드를 연출하는 방향으로 구상하게 되었습니다.
아키: 각 공간마다 어떤 분위기와 공간 구성을 생각하셨나요?
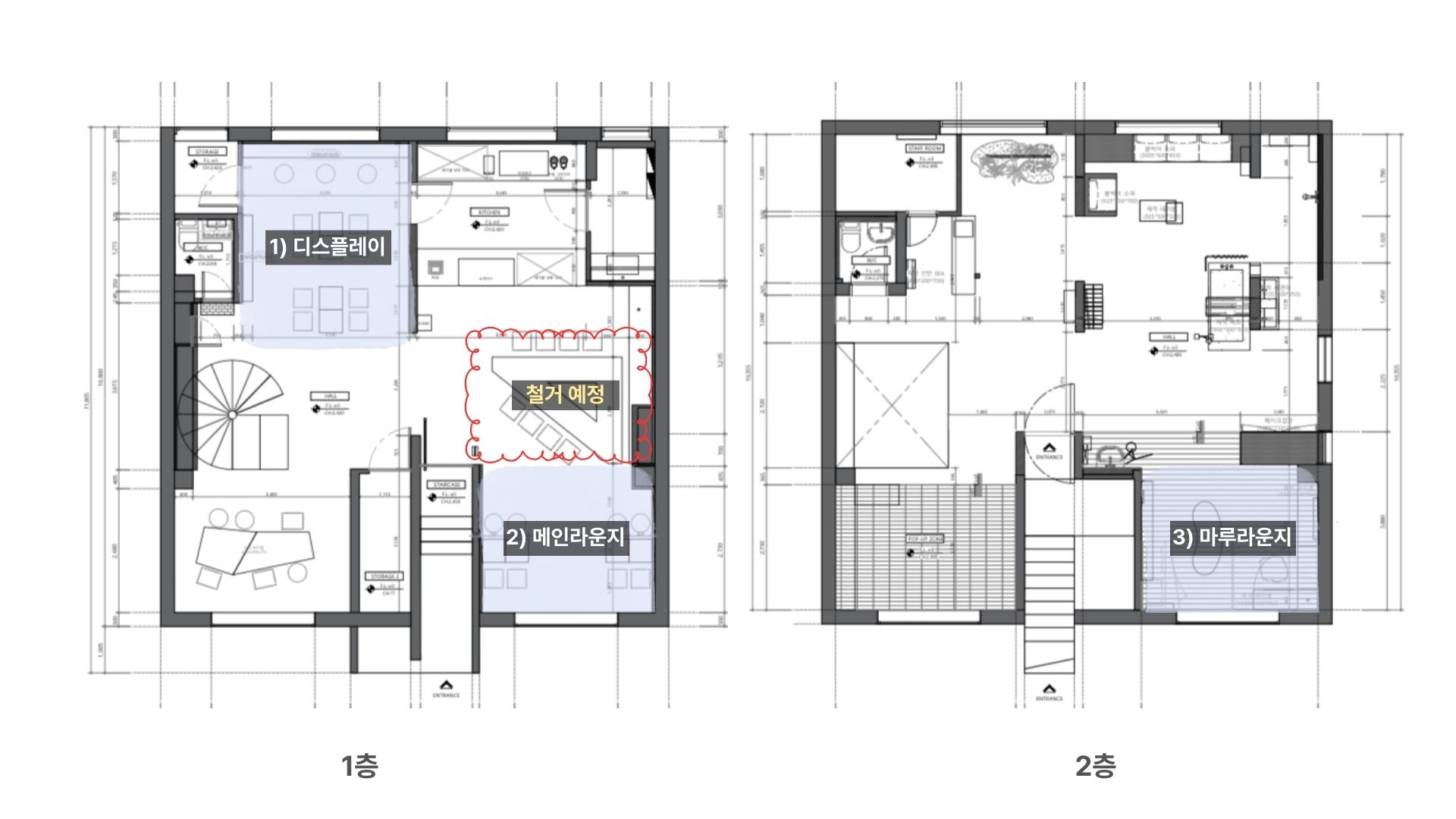
혜빈: 이번 프로젝트는 크게 세 공간으로 나뉘어 진행되었어요. 특히 1층 내부 존은 오른쪽이 카운터, 왼쪽이 스토리지로 연결되는 동선이라 동선 확보가 중요했죠. 2층 창가 공간은 다른 곳과 다르게 바닥 마감이 마루로 되어 있어 좌식 공간으로 기획했어요.

혜빈: 1층 디스플레이 존은 동선을 방해하지 않으면서 최대한 많은 좌석을 확보하는 게 목표였습니다. 카운터와 스토리지를 오가는 직원 동선, 화장실로 가는 손님 동선, 입구에서 자리로 가는 동선까지 모두 고려해야 했거든요.

혜빈: 1층 메인 라운지는 실제로 오래 머무는 메인 공간이기 때문에 1인석부터 그룹석까지 다양한 좌석 타입을 고려했어요. 지나가는 사람들의 시선을 끄는 얼굴 같은 공간이죠. 길에서 바로 보이는 위치라 자연광이 가득 들어오는 점을 살리면 좋겠다고 생각했어요.

혜빈: 2층 창가 마루 라운지는 마루 바닥인 만큼 아늑함을 강조한 공간이에요. 조용히 집중하거나 편히 쉬는 휴식 공간으로 만들고 싶었어요.
🗓️ 작업 기간: 2025년 9월 17일 – 9월 25일 (9일)
아키: 클라이언트와의 피드백 과정이 정말 중요한데, 실제로 소통하는 과정에서 엘로디님이 중요하게 생각한 부분도 궁금해요.
혜빈: 이번 프로젝트는 텍스트 기반 소통으로 빠르고 명확하게 피드백을 주고받을 수 있었어요. 카카오톡과 구글독스를 활용해, 공간 3곳에 대한 디자인을 실시간으로 수정하고 확정해나갈 수 있었죠.

[클라이언트와 카톡 내용]
혜빈: 이렇게 디자이너와 클라이언트가 함께 디자인을 만들어가는 과정 자체가 프로젝트의 완성도를 높여줬어요. 디자인 소통에서 가장 중요한 건 '계속 확인하기', '계속 이야기 나누기'예요. 혼자 다 만들어서 "짜잔!" 하지 말고 단계별로 보여주면서 방향을 확인하고, 클라이언트의 피드백을 귀찮아하지 말고 적극적으로 의견을 물어보는 거죠. 이런 과정이 가능하려면 클라이언트의 협조도 꼭 필요하다는 점, 프로젝트 초반에 안내해주세요!
아키: 가구를 고를 때 특히 어떤 점을 중점적으로 고려하셨나요?
혜빈: 일반적인 카페는 테이블과 의자 중심이지만, 클라이언트께서는 조금 더 자유롭고 편안한 라운지 스타일을 원하셨어요. 여기에 아늑하면서도 세련된 무드까지 잡고 싶어 하셨죠. 그래서 떠올린 건 '블랙 레더 소파'였어요.

혜빈: 소파를 고를 때는 적당한 2~3인 사이즈가 중요했어요. 너무 크면 공간을 압도하니까요. 합리적인 가격대도 고려해야 했고, 고급스러운 분위기를 조성하면서도 상업 공간에서 오래 사용할 수 있는 내구성도 필요했습니다. 블랙 레더 소재로 뉴욕 감성을 살리면서도, 등받이 높이가 적당해서 밖에서 봤을 때 시야를 막지 않는 디자인을 찾는 게 핵심이었어요.

혜빈: 실제로 수십 개의 소파를 3D로 배치해보고 비교했습니다. 아키스케치의 장점이 바로 이거예요. 무제한으로 시뮬레이션해볼 수 있어서, 실제로 구매하기 전에 공간에 어떻게 보일지 정확히 확인할 수 있거든요. 여러 옵션을 검토한 끝에 7번 소파로 최종 결정했어요!

혜빈: 조명은 공간의 분위기를 결정짓는 핵심 요소인데요, 조명 하나만 잘 둬도 공간의 무드가 완전히 달라져요. 조명을 선택할 때는 입체감은 살리되 과하지 않은 것, 미니멀하지만 힘 있는 존재감을 지닌 것을 찾았어요. 실루엣은 깔끔하지만 목이 살짝 꺾인 독특한 플로어 램프를 선택했답니다.
소파와 조명 외에도 사이드 테이블, 선반, 러그, 쿠션 같은 디테일 가구들도 선정했는데요. 소파 옆에 커피잔을 놓을 수 있는 작은 테이블, 월아트와 함께 소품을 배치할 수 있는 선반, 좌식 공간의 따뜻한 느낌을 더하는 러그, 편안함과 컬러 포인트를 동시에 주는 쿠션까지, 이 모든 가구들이 하나의 통일된 무드를 만들어내는 것이 중요했습니다.
🗓️ 작업 기간: 2025년 9월 26일 (1일)
아키: 렌더링에서 어떤 분위기나 느낌을 가장 잘 전달하고 싶으셨나요?
혜빈: 공간 디자인의 마지막 단계는 시각화 작업이에요. 클라이언트가 공간을 더 생생하게 느낄 수 있도록 시간대, 조도(빛의 밝기), 온도감(따뜻한 느낌 vs 차가운 느낌)을 고려해 가장 이상적인 무드로 렌더 이미지를 도출했어요.

혜빈: 아침의 부드러운 자연광, 오후의 따뜻한 햇살, 저녁의 은은한 조명까지 시간대별로 테스트해봤고요. 조도는 너무 밝으면 차갑게 느껴지고 적당히 어두워야 아늑함이 살아나기 때문에 세심하게 조정했습니다.

혜빈: 특히 다양한 각도에서 이미지를 추출해 공간의 전체적인 흐름과 핵심 포인트가 한눈에 들어올 수 있도록 구성한 점이 이번 렌더링의 특징이에요. 목적에 따라 각기 다른 시점으로 렌더링하면 클라이언트의 이해도와 만족도가 훨씬 높아지거든요.

혜빈: 실제로 카페에 들어왔을 때 고객이 보게 될 1인칭 시점으로 렌더링을 만들었어요. "아, 여기 앉으면 이런 느낌이겠구나"를 바로 알 수 있도록요. 그리고 창가의 소파와 조명, 월아트가 모두 보이는 최적의 각도로도 촬영했습니다. 이 한 장의 이미지로 공간의 콘셉트를 전달할 수 있는 가장 보여주고 싶은 앵글이었죠.
실제 공간 사진과 비슷한 구도로 렌더링을 촬영해봤어요. Before & After를 나란히 놓고 보니까, 공간이 어떻게 달라졌는지, 또 어떤 분위기로 연출될지 한눈에 느껴지더라고요. 이 장면이 실제로 구현될 생각을 하니 벌써 기대돼요.



혜빈: 각 공간의 개성이 살아있으면서도, 전체적으로는 하나의 통일된 무드를 유지하는 것이 보이시나요? 이게 바로 우리가 목표로 했던 '뉴욕 아파트먼트 감성의 카페'입니다!
아키: 이야기를 들으면서, 엘로디님이 이번 프로젝트에 얼마나 애정을 쏟았는지가 느껴지네요. 마지막으로 아키스케치 유저분들께 전하고 싶은 메시지가 있을까요?
Elodie(엘로디): 이번 인터뷰를 통해 제가 평소에 중요하게 생각하는 디자인 방식과 고민들을 이야기한 것 같아요. 이 이야기가 공간 디자인을 준비하시는 분들께 작은 도움이 되었으면 좋겠어요.
다음 Part 2에서는 가구 발주부터 실제 공간 배치, 현장 검수까지의 과정을 공유할 예정이에요. 디지털에서 출발한 디자인이 실제 공간으로 전환되는 그 순간을 함께 기대해주세요!
➤ 이전에 작업한 [3d 카페 인테리어]도 궁금하다면 구경해보세요!
키워드: 카페 인테리어 디자인, 아키스케치 실전 활용, 뉴욕 아파트먼트 스타일, 3D 공간 디자인 프로세스, 인테리어 디자이너 인터뷰, 압구정 카페 KYVE, 커뮤니티 카페 디자인, 라운지형 카페, 인테리어 실무 가이드
2025-10-31
53
Archisketch
혜빈